Best 2 BHK Apartment for Sale

Overview of MMKK Apartment

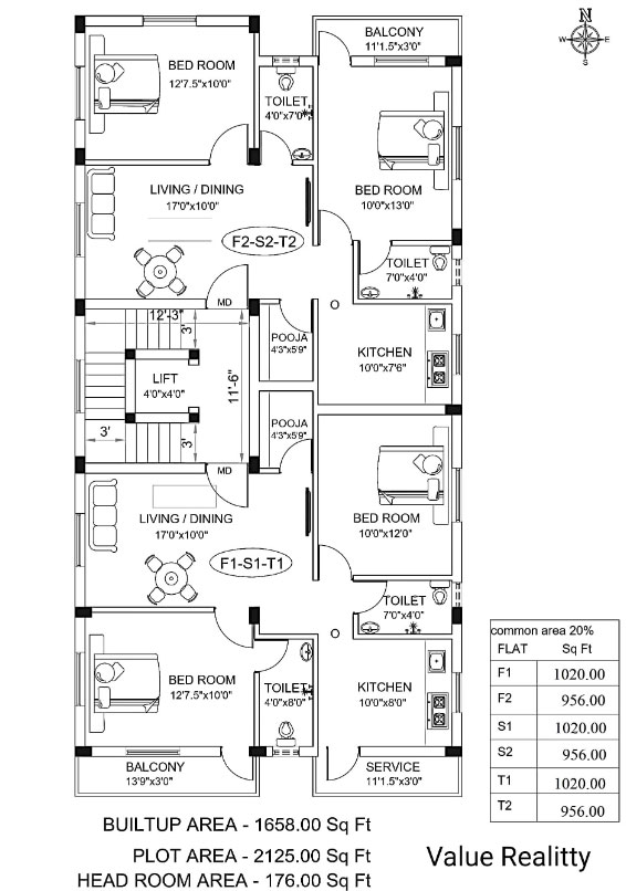
Value Realty MMKK Apartment is a best 2 BHK Apartment community located in East Tambaram, nearby schools, colleges, hospitals, and more. The project is strategically positioned near the Outer Ring Road and the Maduravoyal bypass service road.

Our MMKK Apartment comprises approximately 6 units with a built-up area of 1658 Sq. Ft. each. These luxury apartments offer a blend of comfort and convenience. Nestled in an enchanting destination, the project is conveniently situated near Tambaram Railway Station and Tambaram Bus Terminals.

Amenities

  • Car Parking

  • Lift

Specification

pic
Structure

Structural System : Reinforced Cement Concrete (RCC)

Bricks : Acc Blocks And Red Bricks (Staircase And Lift)

Masonry : Cement Masonry

Floor : Floor Height (Incl.slab): 10 Ft Wall Finish

pic
Wall Finish

Internal Walls : Cement Plastring And Jk Wall Putty

Ceilling : Cement Plastring

Exterior Walls : Cement Plastring And Paint

Bathrooms : Cement Plastrings And Tiles

Kitchen : Cement Plastrings And Tiles

pic
Floor Finish With Skirting

Foyer, Living, Dining ,bedrooms & Kitchen : Cement Plastring And Jk Wall Putty

Ceilling : Cement Plastring

Exterior Walls : Cement Plastring And Paint

Bathrooms : Cement Plastrings And Tiles

Kitchen : Cement Plastrings And Tiles

pic
Kitchen & Dining

Kitchen : Granite Top

Electrical Point : 4 Amp Sacket 3

Cp Fitting : Parryware

Cp Fitting : Parryware

Sink : Stainless Steel

pic
Electrical Points

Power Supply : 3 Phase

Safety Device : Tripers And All Necessary

Switches & Sockts : Legrand

Wires : Orbit

Tv, Cable Tv & Telephone : Provision Done

Inverter Wiring : Provided

Mobile Charging Dock : Provided

Spilt - Air Conditioner : Provided

Exhaust Fan : Provision Provided

pic
Common Features

Lift : 4 Persons

Name Board : Provided

Lobby & Corridor : Tiles

Staircase Floor : Tiles

Handrail : Stainless Steel

Stilt Flooring : Tiles

Terrace Floor : Weather Coating Cooling Tiles

pic
Balcony

Handrail : Stainless Steel & Toughen Glass

pic
Bathrooms

Sanitary Fixture : parryware(Lwestern & 1 Indian)

Cp Fittings : Paryware/finolex

Bathrooms : Two

pic
Joinery

Main Door : Teakwood

Bedroom Doors : Uv Doors

Bathroom Doors : Wpvc Doors

pic
Windows

Windows : Wpvc & Glass

Ventilators : Wpvc & Glass

pic
Outdoor Features

Water Storage : 8000 Liters Sump 4000l Tank

Rain Water Harvest : Provided

Well Defined Driveway : Provided

Compound Wall : Provided

Layout Plan

Website Design & Developed By GlintCreatives.com